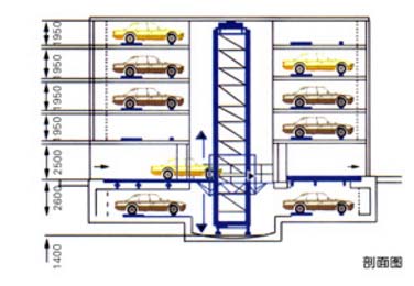
立體停車是指利用空間資源,把車輛進行立體停放,節約土地并較大化利用的新型停車。立體停車場的優勢就在于其能夠充分利用城市空間,被稱為城市空間的“節能者”。立體停車場的出現與汽車的三次工業革命息息相關,較早的立體停車場出現在歐洲第二次汽車工業革命時期。
立體停車設備可以廣泛應用于各種場景,包括:
商業區:商業區的車流、人流密集,立體停車設備可以提供大量的停車位,同時也有助于緩解交通壓力。
住宅區:住宅區的土地有限,傳統的平面停車場無法滿足居民的停車需求。立體停車設備可以提供多層、自動化的停車方式,既方便又節省空間。
公共場所:公共場所如公園、廣場、購物中心等,立體停車設備可以提供大量的停車位,同時也是一種創新的停車解決方案。
醫院:醫院往往因為停車難而影響患者就診體驗,立體停車設備可以提供高效、方便的停車服務,提高醫院的服務質量。
學校:學校周邊的停車問題常常困擾著家長和學校,立體停車設備可以提供足夠的停車位,同時也有助于改善學校周邊的交通狀況。
總之,立體停車設備的應用場景非常廣泛,可以為各種場所提供高效、便捷的停車服務,提高人們的生活和工作效率。
掃描進入手機站